Калькулятор ремонта
с 9:00 до 19:00 ежедневно,
воскресенье выходной
ГлавнаяПортфолиоДизайн квартир фотоДизайн трехкомнатной квартиры по адресу: улица Эдварда Грига, дом 9, корпус 3

Дизайн трехкомнатной квартиры по адресу: улица Эдварда Грига, дом 9, корпус 3

улица Эдварда Грига, дом 9, корпус 3
79
3 комнаты

ОПИСАНИЕ ПРОЕКТА

Квартира в ЖК «Скандинавия» принадлежит супружеской паре с тремя детьми. Заказчики обратились в СК «Новая Москва» с запросом на светлый интерьер, где найдется место и для совместного досуга, и для уединения.

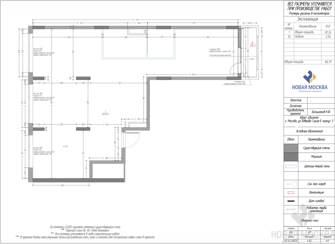
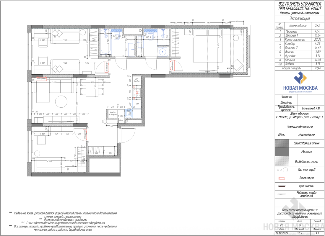
Жилье сдавалось в черновой отделке со свободной планировкой. На площади 79 кв. м дизайнер разместил прихожую, кухню-гостиную, два санузла и три спальни. В каждом помещении нашлось место для систем хранения, что важно для поддержания порядка в семье с детьми. Интересным решением стала проходная кухня-гостиная: в открытом пространстве грамотно распределили зоны готовки, приема пищи и отдыха. Спальню родителей увеличили за счет присоединения лоджии.

Интерьер выполнен в мягких кремовых и кофейных тонах. Нейтральная палитра не выглядит монотонной за счет игры фактур: растительных мотивов на обоях, тактильных обивки мебели и текстиля, рельефных молдингов и древесного рисунка напольного покрытия. В детских комнатах базовые цвета дополнили традиционными голубым и розовым оттенками.

Лаконичное точечное освещение и контурная подсветка в функциональных зонах гармонично сочетаются с декоративными потолочными светильниками и бра.

Мечтаете о стильном и уютном интерьере? Получите продуманный до мелочей дизайн-проект со скидкой 50% при заказе ремонта в СК «Новая Москва».


Расчет сметы ремонта

Вы будете знать на 95% точный бюджет предстоящих работ ремонта под ключ

Бесплатная консультация дизайнера или прораба инженера

Один разговор по телефону на 10 минут заменяет 4 часа изучения сайтов в интернете. Если вы цените свое время, то рекомендуем воспользоваться нашей консультацией
Нажимая кнопку, вы подтверждаете согласие с условиями политики конфиденциальности сайта
Нужен только телефон. Мы перезвоним, сориентируем по срокам и если все понравится - мастер может выехать на замер уже завтра

Или перезвоните нам
+7 (495) 120-99-10

ВАМ ТАКЖЕ МОГУТ ПОНРАВИТЬСЯ

Яндекс.Метрика