Калькулятор ремонта
с 9:00 до 19:00 ежедневно,
воскресенье выходной
ГлавнаяПортфолиоДизайн квартир фотоДизайн трехкомнатной квартиры по адресу: улица Эдварда Грига, дом 17

Дизайн трехкомнатной квартиры по адресу: улица Эдварда Грига, дом 17

ул.Эдварда Грига, дом 17
97
3 комнаты

ОПИСАНИЕ ПРОЕКТА

Проект квартиры в ЖК «Скандинавия» — очередная успешная история дистанционного сотрудничества заказчика с командой СК «Новая Москва». Хозяин жилья работает в Германии и планирует возвращаться в Москву, где его будет ждать просторная квартира с современным ремонтом в полной комплектации.

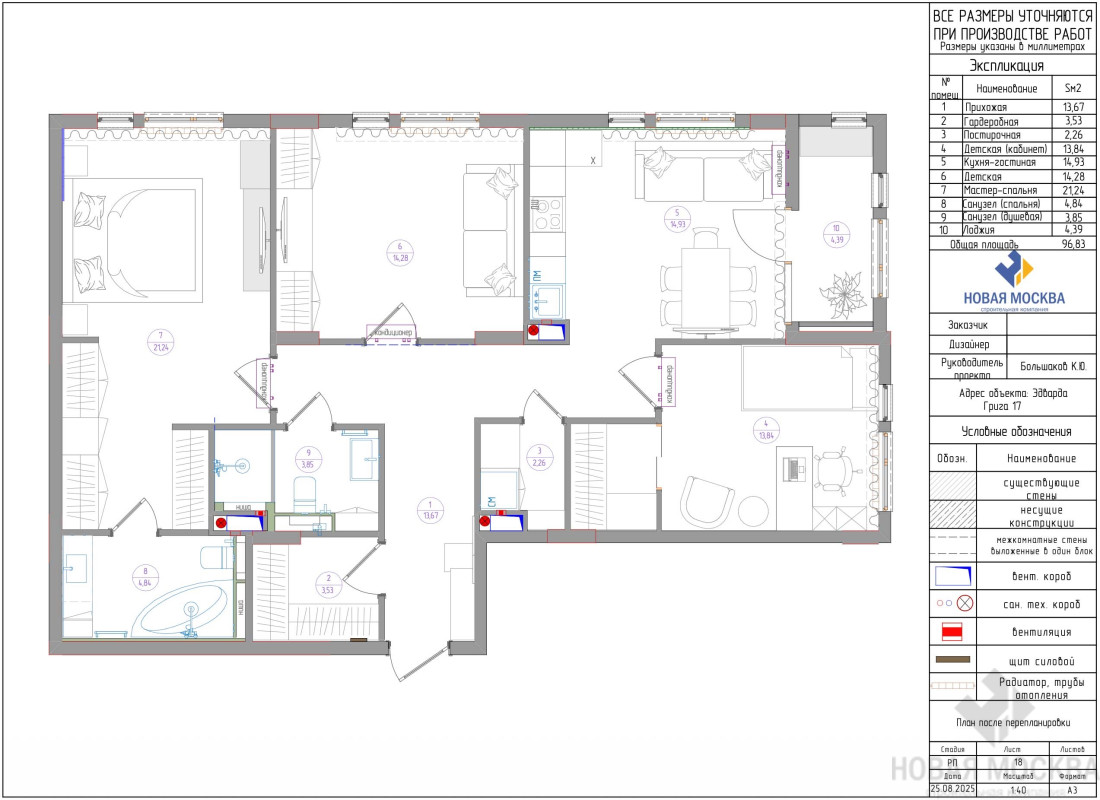
Расположение и размер помещений от застройщика полностью устраивали заказчика, поэтому в исходную планировку вмешиваться не стали. На площади 97 кв. м расположились прихожая, гардеробная, гостевой санузел, постирочная, мастер-спальня со своим санузлом, кухня-гостиная с выходом на лоджию, детская и кабинет.

Интерьер сочетает в себе приметы современного и неоклассического стилей. Общее спокойное настроение отделки и обстановки дополнено декоративными элементами, которые придают пространству характер. Активный орнамент плитки в прихожей и на кухне задают функциональные маршруты, акцентные обои и рамки молдингов деликатно зонируют помещения.

За цветовую основу взяты серый и бежевый оттенки, акценты расставлены глубоким синим. Поверхности с фактурами натуральных дерева и камня делают пространство респектабельным и тактильным.

В квартире предусмотрено множество мест хранения, благодаря которым будет легко поддерживать порядок в каждой из комнат. Многоуровневая система освещения реализована с помощью точечной подсветки, подвесных светильников, люстр и бра для настройки различных световых сценариев.

Мечтаете о стильном и уютном интерьере? Получите продуманный до мелочей дизайн-проект со скидкой 50% при заказе ремонта в СК «Новая Москва».


Расчет сметы ремонта

Вы будете знать на 95% точный бюджет предстоящих работ ремонта под ключ

Бесплатная консультация дизайнера или прораба инженера

Один разговор по телефону на 10 минут заменяет 4 часа изучения сайтов в интернете. Если вы цените свое время, то рекомендуем воспользоваться нашей консультацией
Нажимая кнопку, вы подтверждаете согласие с условиями политики конфиденциальности сайта
Нужен только телефон. Мы перезвоним, сориентируем по срокам и если все понравится - мастер может выехать на замер уже завтра

Или перезвоните нам
+7 (495) 120-99-10

ВАМ ТАКЖЕ МОГУТ ПОНРАВИТЬСЯ

Яндекс.Метрика