Калькулятор ремонта
с 9:00 до 19:00 ежедневно,
воскресенье выходной
ГлавнаяПортфолиоДизайн квартир фотоДизайн трехкомнатной квартиры по адресу ул. Эдварда Грига, дом 17

Дизайн трехкомнатной квартиры по адресу ул. Эдварда Грига, дом 17

Москва, ул. Эдварда Грига, дом 17
75
3 комнаты

ОПИСАНИЕ ПРОЕКТА

Эта квартира — настоящий подарок! Просторная «трешка» в ЖК «Скандинавия» приобретена заказчиками для дочери-студентки. Лаконичный и изящный интерьер, созданный командой СК «Новая Москва», полностью соответствует запросам девушки, а в будущем легко трансформируется в квартиру для молодой семьи.

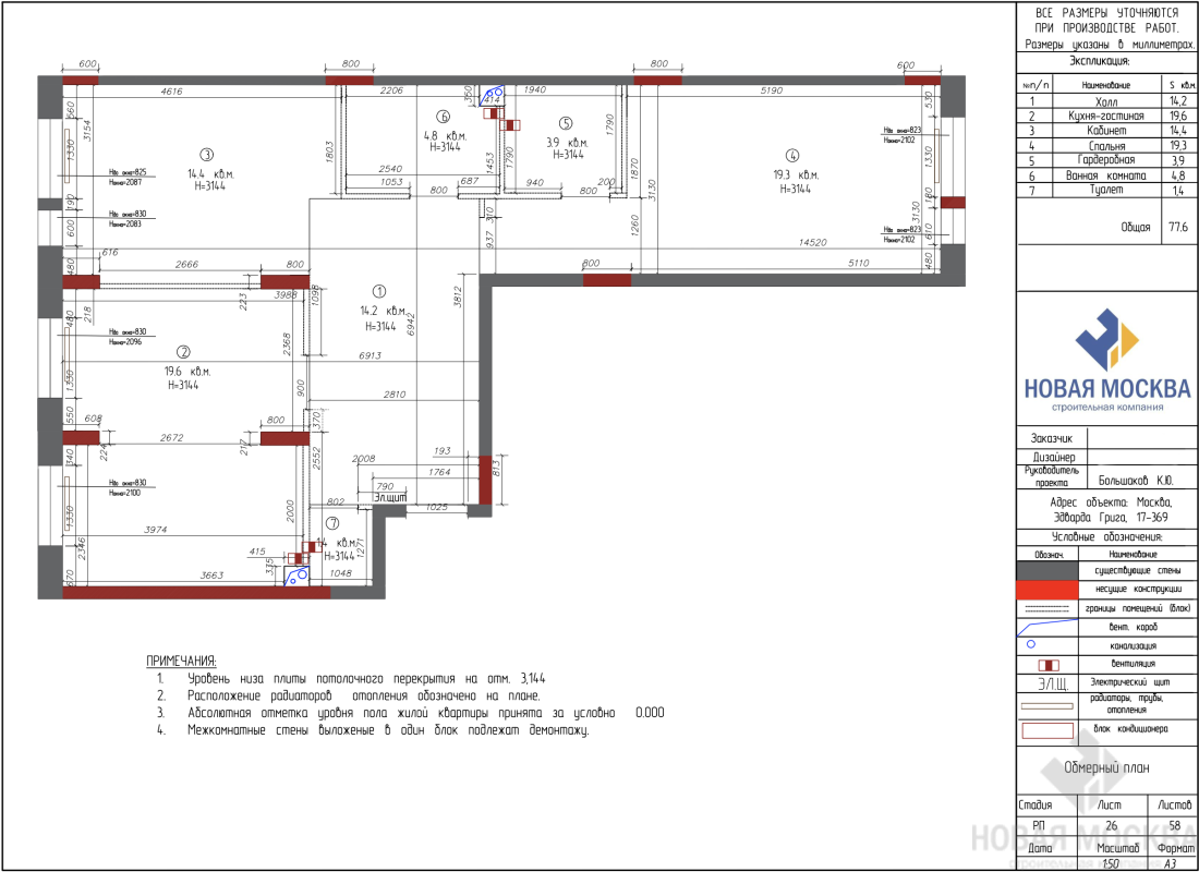
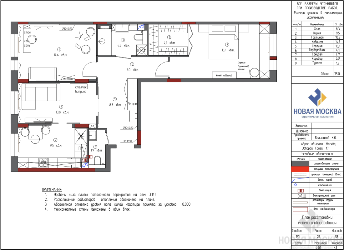
На площади 75 кв. м расположились прихожая, кухня, отдельная гостиная, кабинет и спальня. Нашлось место и для двух санузлов: меньший из них расположен во входной зоне, а больший — рядом со спальней. Вытянутую форму спальни скорректировали, разместив здесь полноценную гардеробную. 

Основной концепцией интерьера стало сочетание женственной пудрово-розовой гаммы с чистыми линиями минимализма. Единое цветовое решение наполняет пространство воздухом и светом, идею плавного перехода из одного помещения в другое поддерживают двери скрытого монтажа и легкие стеклянные перегородки. Динамики обстановке придает диагональный рисунок напольного покрытия, рифленые фасады мебели и изящные черные акценты в каждой комнате. Деликатная палитра, округлые формы мягкой мебели, подвесные и встроенные системы хранения — здесь все работает на ощущение легкости и комфорта.

Мечтаете о стильном и уютном интерьере? Получите продуманный до мелочей дизайн-проект со скидкой 50% при заказе ремонта в СК «Новая Москва».



Расчет сметы ремонта

Вы будете знать на 95% точный бюджет предстоящих работ ремонта под ключ

Бесплатная консультация дизайнера или прораба инженера

Один разговор по телефону на 10 минут заменяет 4 часа изучения сайтов в интернете. Если вы цените свое время, то рекомендуем воспользоваться нашей консультацией
Нажимая кнопку, вы подтверждаете согласие с условиями политики конфиденциальности сайта
Нужен только телефон. Мы перезвоним, сориентируем по срокам и если все понравится - мастер может выехать на замер уже завтра

Или перезвоните нам
+7 (495) 120-99-10

ВАМ ТАКЖЕ МОГУТ ПОНРАВИТЬСЯ

Яндекс.Метрика