Калькулятор ремонта
с 9:00 до 19:00 ежедневно,
воскресенье выходной
ГлавнаяПортфолиоДизайн квартир фотоДизайн-проект трехкомнатной квартиры по адресу ул. Родниковая, 30/3

Дизайн-проект трехкомнатной квартиры по адресу ул. Родниковая, 30/3

Москва, улица Родниковая, дом 30, корпус 3
78
3 комнаты

ОПИСАНИЕ ПРОЕКТА

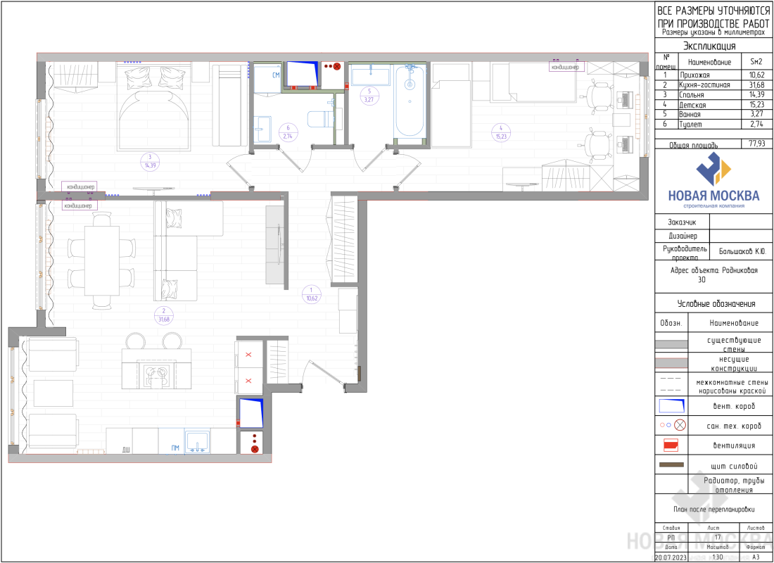
Квартира в ЖК «Румянцево-Парк» принадлежит супругам с двумя детьми. Семья любит проводить время вместе, поэтому одним из важных требований к дизайн-проекту была просторная гостиная с зоной столовой, местом для киновечеров и уголком для настольных игр.

Дизайнер СК «Новая Москва» предложил демонтировать перегородку между кухней и гостиной и балконный блок. Результатом стало единое пространство площадью 32 кв. м, в котором гармонично разместились различные функциональные зоны. Кухонный остров позволяет готовить, не отрываясь от беседы с близкими или от просмотра телевизора. Перекусить можно, устроившись на барных стульях у острова или в уютном уголке на месте бывшей лоджии. Для семейных обедов и ужинов предназначена столовая группа, которую отделили от ТВ-зоны диваном, способным заключить в свои объятия всех домочадцев.

Расчет сметы ремонта

Вы будете знать на 95% точный бюджет предстоящих работ ремонта под ключ

Бесплатная консультация дизайнера или прораба инженера

Один разговор по телефону на 10 минут заменяет 4 часа изучения сайтов в интернете. Если вы цените свое время, то рекомендуем воспользоваться нашей консультацией
Нажимая кнопку, вы подтверждаете согласие с условиями политики конфиденциальности сайта
Нужен только телефон. Мы перезвоним, сориентируем по срокам и если все понравится - мастер может выехать на замер уже завтра

Или перезвоните нам
+7 (495) 120-99-10

ВАМ ТАКЖЕ МОГУТ ПОНРАВИТЬСЯ

Яндекс.Метрика