Калькулятор ремонта
с 9:00 до 19:00 ежедневно,
воскресенье выходной
ГлавнаяПортфолиоДизайн квартир фотоДизайн однокомнатной квартиры по адресу: Волгоградский проспект, дом 32/5 корпус 3

Дизайн однокомнатной квартиры по адресу: Волгоградский проспект, дом 32/5 корпус 3

Волгоградский проспект, дом 32/5 корпус 3
41
1 комната

ОПИСАНИЕ ПРОЕКТА

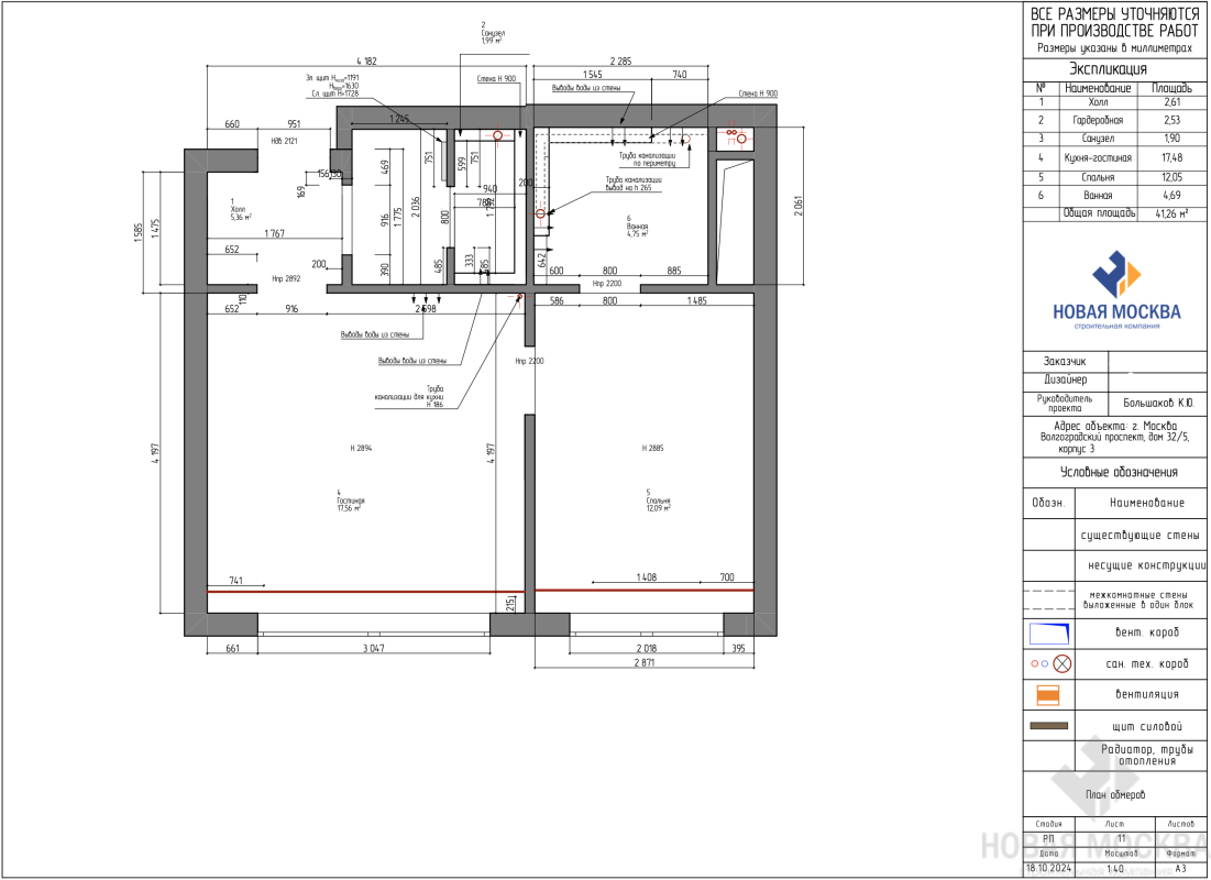
Хозяйка квартиры в ЖК «Метрополия» — молодая активная москвичка — обратилась в СК «Новая Москва» с запросом на светлый современный интерьер. Расположение и размер помещений от застройщика полностью устраивали заказчицу, поэтому в исходную планировку вмешиваться не стали.

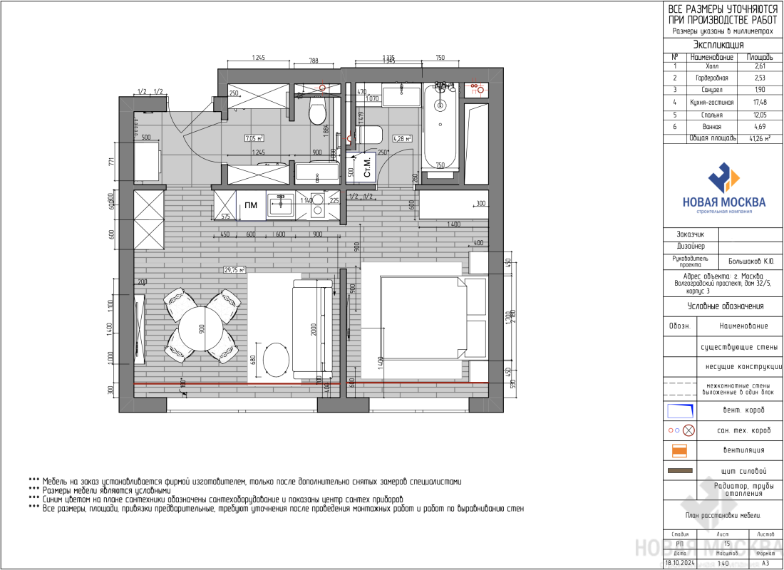
На площади 41 кв. м расположились прихожая, гардеробная, кухня-гостиная, спальня и два санузла. Между гардеробной и малым санузлом отказались от установки межкомнатной двери, чтобы сэкономить полезное пространство. К тому же, домашним питомцам заказчицы был необходим свободный доступ к лоткам в туалете.

Проект выполнен в благородных оттенках белого, серого и коричневого. Золотые акценты и цитаты из классического стиля придают обстановке деликатную торжественность. Отделка керамогранитом под мрамор и рамки молдингов в сочетании с простыми линиями и спокойной палитрой делают интерьер «долгоиграющим» — такое оформление останется актуальным вне капризной моды.

Особое внимание в проекте уделено рациональному хранению не в ущерб эстетике и скромной площади жилья. Платяной шкаф в спальне имеет зеркальные дверцы, благодаря которым теряет свой визуальный вес и практически растворяется в пространстве. Лаконичные фасады кухонного гарнитура не выглядят массивными, подвесная мебель в прихожей, зоне гостиной, спальне и в санузлах продолжает концепцию светлого и воздушного интерьера.

Мечтаете о стильном и уютном интерьере? Получите продуманный до мелочей дизайн-проект со скидкой 50% при заказе ремонта в СК «Новая Москва».


Расчет сметы ремонта

Вы будете знать на 95% точный бюджет предстоящих работ ремонта под ключ

Бесплатная консультация дизайнера или прораба инженера

Один разговор по телефону на 10 минут заменяет 4 часа изучения сайтов в интернете. Если вы цените свое время, то рекомендуем воспользоваться нашей консультацией
Нажимая кнопку, вы подтверждаете согласие с условиями политики конфиденциальности сайта
Нужен только телефон. Мы перезвоним, сориентируем по срокам и если все понравится - мастер может выехать на замер уже завтра

Или перезвоните нам
+7 (495) 120-99-10

ВАМ ТАКЖЕ МОГУТ ПОНРАВИТЬСЯ

Яндекс.Метрика