Калькулятор ремонта
с 9:00 до 19:00 ежедневно,
воскресенье выходной
ГлавнаяПортфолиоДизайн квартир фотоДизайн-проект двухкомнатной квартиры по адресу ул. Эдварда Грига, 16/1

Дизайн-проект двухкомнатной квартиры по адресу ул. Эдварда Грига, 16/1

Москва, поселение Сосенское, поселок Коммунарка, улица Эдварда Грига, дом 16 корпус 1
60
2 комнаты

ОПИСАНИЕ ПРОЕКТА

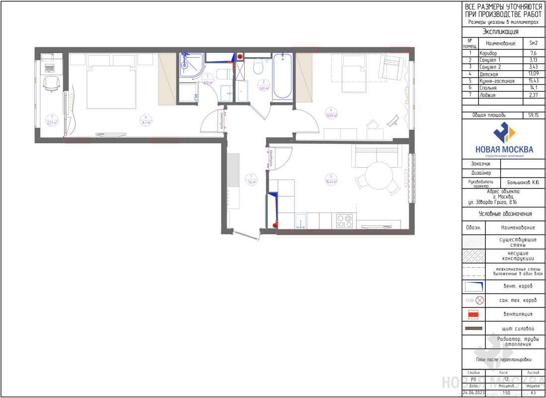
Владельцы двухкомнатной квартиры в ЖК «Скандинавия» недавно переехали из Самары в Москву. В списке пожеланий молодой семейной пары значились кухня-гостиная со спальным гостевым местом, домашний кабинет и два санузла.

На площади 60 кв. м дизайнеру СК «Новая Москва» удалось разместить все необходимое. Автономная кухня получилась просторной и функциональной: здесь расположился вместительный кухонный гарнитур, а в зоне гостиной поставили раскладной диван для бабушки, которая часто остается с ночевкой. В одном из санузлов установлен душевой уголок и организовано место для стирки и хранения бытовых мелочей. Второй санузел оснащен ванной для комфортного купания малыша. Лоджию, которая служит хозяйке квартиры кабинетом, утеплили и снабдили системой теплого пола. 


Расчет сметы ремонта

Вы будете знать на 95% точный бюджет предстоящих работ ремонта под ключ

Бесплатная консультация дизайнера или прораба инженера

Один разговор по телефону на 10 минут заменяет 4 часа изучения сайтов в интернете. Если вы цените свое время, то рекомендуем воспользоваться нашей консультацией
Нажимая кнопку, вы подтверждаете согласие с условиями политики конфиденциальности сайта
Нужен только телефон. Мы перезвоним, сориентируем по срокам и если все понравится - мастер может выехать на замер уже завтра

Или перезвоните нам
+7 (495) 120-99-10

ВАМ ТАКЖЕ МОГУТ ПОНРАВИТЬСЯ

Яндекс.Метрика