Калькулятор ремонта
с 9:00 до 19:00 ежедневно,
воскресенье выходной
ГлавнаяПортфолиоДизайн квартир фотоДизайн однокомнатной квартиры по адресу: улица Архитектора Щусева, дом 5, корпус 1

Дизайн однокомнатной квартиры по адресу: улица Архитектора Щусева, дом 5, корпус 1

36
1 комната

ОПИСАНИЕ ПРОЕКТА

Владелец жилья в ЖК «ЗИЛАРТ» пришел с запросом на лаконичный интерьер с эффективным использованием пространства.

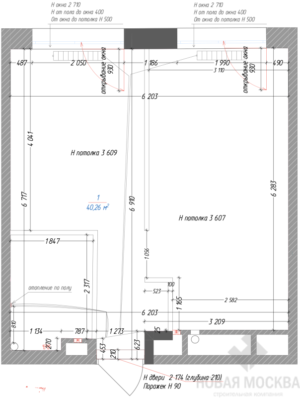
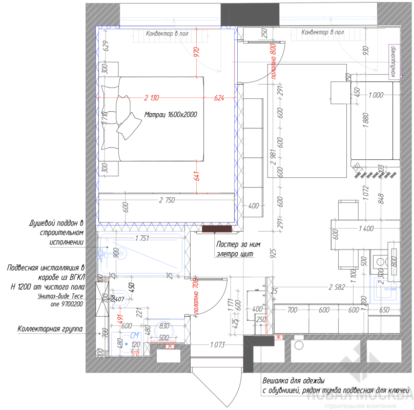
На площади 36 кв. м разместились прихожая, совмещенный санузел, кухня-гостиная и спальня. Дизайнеру проекта удалось грамотно организовать системы хранения, что особенно важно для небольших помещений. Шкафы кухонного гарнитура расположены по одной стене до самого потолка, это позволило разгрузить зону готовки и приема пищи. Часть фасадов выполнена из стекла с подсветкой — такой прием создает ощущение легкости. Подвесной стеллаж в зоне гостиной будто парит в воздухе, встроенный шкаф в спальне сливается со стеной и не загромождает комнату.

Сдержанную серую палитру гармонично дополняет светлое дерево и графичные детали: светильники, напольный плинтус, фурнитура дверей и мебели. Здесь все подчинено идее отдыха от ритма мегаполиса: единство оттенков работает на цельное восприятие интерьера, двери скрытого монтажа и минималистичное освещение избавляют от визуального шума. Крупноформатный керамогранит для отделки пола и стен санузла не дробит пространство, подвесная сантехника и скрытое хранение в нише над унитазом облегчают уборку.

Мечтаете о стильном и уютном интерьере? Получите продуманный до мелочей дизайн-проект со скидкой 50% при заказе ремонта в СК «Новая Москва».


Расчет сметы ремонта

Вы будете знать на 95% точный бюджет предстоящих работ ремонта под ключ

Бесплатная консультация дизайнера или прораба инженера

Один разговор по телефону на 10 минут заменяет 4 часа изучения сайтов в интернете. Если вы цените свое время, то рекомендуем воспользоваться нашей консультацией
Нажимая кнопку, вы подтверждаете согласие с условиями политики конфиденциальности сайта
Нужен только телефон. Мы перезвоним, сориентируем по срокам и если все понравится - мастер может выехать на замер уже завтра

Или перезвоните нам
+7 (495) 120-99-10

ВАМ ТАКЖЕ МОГУТ ПОНРАВИТЬСЯ

Яндекс.Метрика