Калькулятор ремонта
с 9:00 до 19:00 ежедневно,
воскресенье выходной
ГлавнаяПортфолиоДизайн квартир фотоДизайн однокомнатной квартиры по адресу Скандинавский бульвар, дом 2, корпус 8

Дизайн однокомнатной квартиры по адресу Скандинавский бульвар, дом 2, корпус 8

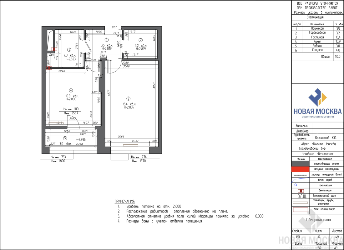
Москва, Скандинавский бульвар, дом 2, корпус 8
40
1 комната

ОПИСАНИЕ ПРОЕКТА

Тот случай, когда небольшая квартира производит большое впечатление! На скромных 40 кв. м для элегантной леди создан яркий и необычный интерьер с оригинальными деталями.

Планировку от застройщика менять не стали — она полностью устраивала заказчицу. Конструктивные изменения коснулись только одной из стен спальни-гостиной: в ней организовали нишу для декоративного камина.

Одну из главных ролей в этом пространстве играет цвет. Основная палитра проекта состоит из гурманских оттенков сливок и шоколада и от души приправлена согревающим терракотовым. Насыщенный цвет потолков создает камерный эффект, благодаря которому комнаты наполнены обволакивающим уютом.  Синие, красные и желтые предметы обстановки делают интерьер артистичным, выглядят смело и свежо. Золотая фурнитура мебели, светильников и декор в этом металле создают атмосферу женственности.

Округлые формы предметов интерьера уравновешены четкими рамками настенных молдингов, вертикальной фрезеровкой на фасадах мебели, динамичной раскладкой инженерной доски на полу. Несмотря на всю декоративность проекта, он получился цельным, гармоничным и отражающим неординарную личность хозяйки квартиры.

Мечтаете о стильном и уютном интерьере? Получите продуманный до мелочей дизайн-проект со скидкой 50% при заказе ремонта в СК «Новая Москва».


Расчет сметы ремонта

Вы будете знать на 95% точный бюджет предстоящих работ ремонта под ключ

Бесплатная консультация дизайнера или прораба инженера

Один разговор по телефону на 10 минут заменяет 4 часа изучения сайтов в интернете. Если вы цените свое время, то рекомендуем воспользоваться нашей консультацией
Нажимая кнопку, вы подтверждаете согласие с условиями политики конфиденциальности сайта
Нужен только телефон. Мы перезвоним, сориентируем по срокам и если все понравится - мастер может выехать на замер уже завтра

Или перезвоните нам
+7 (495) 120-99-10

ВАМ ТАКЖЕ МОГУТ ПОНРАВИТЬСЯ

Яндекс.Метрика