Калькулятор ремонта
с 9:00 до 19:00 ежедневно,
воскресенье выходной
ГлавнаяПортфолиоДизайн квартир фотоДизайн однокомнатной квартиры по адресу Москва ул. Эдварда Грига, 14

Дизайн однокомнатной квартиры по адресу Москва ул. Эдварда Грига, 14

Москва ул. Эдварда Грига, 14
42
1 комната

ОПИСАНИЕ ПРОЕКТА

«Евродвушку» в ЖК «Скандинавия» клиентыиз Южно-Сахалинска приобрели для дочери-студентки, которая поступила в один из столичных вузов. Юная хозяйка квартиры заявила о конкретных вкусовых пристрастиях, и результатом сотрудничества с дизайнером СК «Новая Москва» стало современное пространство с элементами стиля лофт.

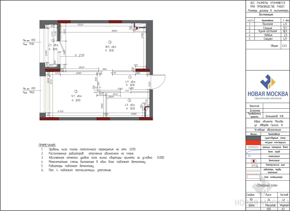
Расположение и размер помещений от застройщика полностью устраивали заказчиков, поэтому в исходную планировку вмешиваться не стали. На площади 42 кв. м расположились прихожая, санузел, отдельная спальня, кухня-гостиная и лоджия-кабинет. 

Цветовой основой интерьера стали серые и коричневые оттенки. Сдержанная гамма гармонично сочетается с брутальными деталями: стены отделаны декоративной штукатуркой под бетон, во входной зоне запланировано панно из каменного шпона. При этом квартира не выглядит мрачной: дизайнеру удалось выдержать баланс светлых и темных, холодных и теплых оттенков. Четкие линии сочетаются с плавными формами мебели и мягкостью текстиля, к фактурным элементам отделки и декора хочется прикасаться. Деревянные поверхности и акцентная подсветка создают атмосферу камерности и уюта.

Мечтаете о стильном и уютном интерьере? Получите продуманный до мелочей дизайн-проект со скидкой 50% при заказе ремонта в СК «Новая Москва».

Расчет сметы ремонта

Вы будете знать на 95% точный бюджет предстоящих работ ремонта под ключ

Бесплатная консультация дизайнера или прораба инженера

Один разговор по телефону на 10 минут заменяет 4 часа изучения сайтов в интернете. Если вы цените свое время, то рекомендуем воспользоваться нашей консультацией
Нажимая кнопку, вы подтверждаете согласие с условиями политики конфиденциальности сайта
Нужен только телефон. Мы перезвоним, сориентируем по срокам и если все понравится - мастер может выехать на замер уже завтра

Или перезвоните нам
+7 (495) 120-99-10

ВАМ ТАКЖЕ МОГУТ ПОНРАВИТЬСЯ

Яндекс.Метрика