Калькулятор ремонта
с 9:00 до 19:00 ежедневно,
воскресенье выходной
ГлавнаяПортфолиоДизайн квартир фотоДизайн однокомнатной квартиры по адресу Аминьевское шоссе, дом 4Д, корпус В

Дизайн однокомнатной квартиры по адресу Аминьевское шоссе, дом 4Д, корпус В

Аминьевское шоссе, дом 4Д, корпус В
41
1 комната

ОПИСАНИЕ ПРОЕКТА

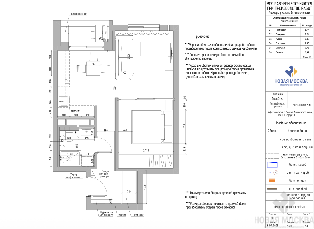
Воздушный интерьер в стиле минимализм на 41 кв. м создан для молодой москвички командой СК «Новая Москва».

Планировку от застройщика изменили, чтобы получить современное пространство с грамотным разделением на функциональные зоны:

-избавились от стены между кухней и гостиной;

-выделили зону спальни, которая будет закрываться раздвижной стеклянной перегородкой;

-заменили балконный блок на французское окно — утепленная лоджия будет служить хозяйке кабинетом;

-увеличили площадь санузла за счет коридора, что позволило разместить колонну из стиральной и сушильной машин.

Заказчица остановила свой выбор на бежевой гамме. Монохромное цветовое решение стало отличным выбором для небольшого жилья — отсутствие резких контрастов делает квартиру визуально просторной и наполненной светом. Деликатные цветные акценты и разность фактур в отделке и обстановке не дают заскучать взгляду. Лаконичная система освещения ненавязчиво зонирует пространство.

Мечтаете о стильном и уютном интерьере? Получите продуманный до мелочей дизайн-проект со скидкой 50% при заказе ремонта в СК «Новая Москва».


Расчет сметы ремонта

Вы будете знать на 95% точный бюджет предстоящих работ ремонта под ключ

Бесплатная консультация дизайнера или прораба инженера

Один разговор по телефону на 10 минут заменяет 4 часа изучения сайтов в интернете. Если вы цените свое время, то рекомендуем воспользоваться нашей консультацией
Нажимая кнопку, вы подтверждаете согласие с условиями политики конфиденциальности сайта
Нужен только телефон. Мы перезвоним, сориентируем по срокам и если все понравится - мастер может выехать на замер уже завтра

Или перезвоните нам
+7 (495) 120-99-10

ВАМ ТАКЖЕ МОГУТ ПОНРАВИТЬСЯ

Яндекс.Метрика