Калькулятор ремонта
с 9:00 до 19:00 ежедневно,
воскресенье выходной
ГлавнаяПортфолиоДизайн квартир фотоДизайн двухкомнатной квартиры по адресу: улица Бартеневская, дом 18, корпус 1

Дизайн двухкомнатной квартиры по адресу: улица Бартеневская, дом 18, корпус 1

г.Москва, улица Бартеневская, дом 18, корпус 1
59
2 комнаты

ОПИСАНИЕ ПРОЕКТА

Жилье в ЖК «Южные сады» принадлежит семье из трех человек. Дизайн без лишних деталей, много света и спокойная природная гамма — с таким запросом заказчики обратились в СК «Новая Москва». 

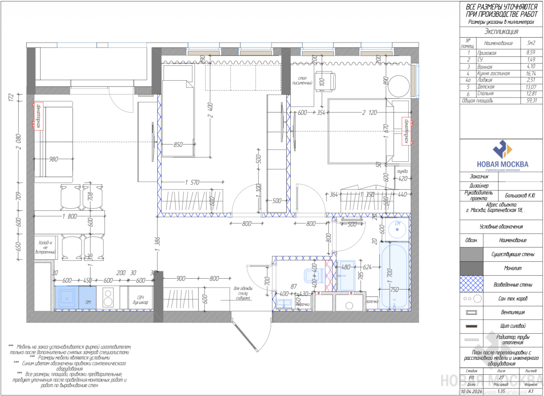
В квартире сохранили планировку, предложенную застройщиком. На площади 59 кв. м разместились прихожая, раздельный санузел, кухня-гостиная с выходом на лоджию и две спальни. 

Для прихожей и кухни-гостиной в качестве основного цвета выбрали универсальный бежевый. Здесь отсутствуют контрастные решения: белые двери, светлые корпусная мебель и напольное покрытие создают атмосферу воздушности и чистоты. Серые тона добавляют интерьеру собранности, зеленый и терракотовый в компании с деревянными поверхностями делают обстановку теплее и уютнее.

В спальне родителей природную тему продолжили с помощью акцентной стены, которую оформили обоями с растительными мотивами. В санузлах по желанию хозяев использовали керамогранит в цветах моря и песка, на этом фоне белая мебель и сантехника выглядят особенно свежо.

Детская выполнена в традиционной девичьей палитре: нежные розовый и сиреневый деликатно сочетаются с базовыми бежевым и белым. Расстановка мебели предусматривает замену кровати-чердака на «взрослую» кровать в будущем. Маты для активных игр со временем тоже можно будет убрать и организовать рабочее место, когда девочка пойдет в школу.

Мечтаете о стильном и уютном интерьере? Получите продуманный до мелочей дизайн-проект со скидкой 50% при заказе ремонта в СК «Новая Москва».


Расчет сметы ремонта

Вы будете знать на 95% точный бюджет предстоящих работ ремонта под ключ

Бесплатная консультация дизайнера или прораба инженера

Один разговор по телефону на 10 минут заменяет 4 часа изучения сайтов в интернете. Если вы цените свое время, то рекомендуем воспользоваться нашей консультацией
Нажимая кнопку, вы подтверждаете согласие с условиями политики конфиденциальности сайта
Нужен только телефон. Мы перезвоним, сориентируем по срокам и если все понравится - мастер может выехать на замер уже завтра

Или перезвоните нам
+7 (495) 120-99-10

ВАМ ТАКЖЕ МОГУТ ПОНРАВИТЬСЯ

Яндекс.Метрика