Калькулятор ремонта
с 9:00 до 19:00 ежедневно,
воскресенье выходной
ГлавнаяПортфолиоДизайн квартир фотоДизайн двухкомнатной квартиры по адресу ул. Нарвская, дом 11, корпус 4

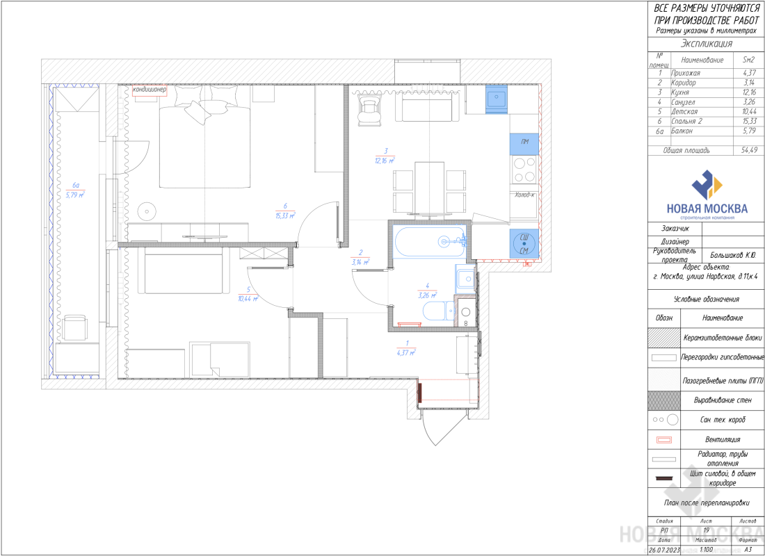
Дизайн двухкомнатной квартиры по адресу ул. Нарвская, дом 11, корпус 4

Москва
0
2 комнаты

ОПИСАНИЕ ПРОЕКТА

Эту московскую квартиру родители подарили взрослой дочери. Заказчики пришли с запросом на современное жилье для молодой семьи, в которой ожидали появления первенца. 

Скромные по площади ванную и туалет объединили в просторный совмещенный санузел. Детскую увеличили за счет сдвига межкомнатной перегородки в сторону прихожей, а в полученную таким образом нишу встанет встроенный шкаф.

Этот интерьер соткан из базовых оттенков белого, серого и бежевого, немного синего цвета добавили только в комнату малыша. Роль декоративных акцентов отвели принтам, формам и фактурам. Динамики пространству придают четкие линии подсветки на потолках, им вторят рамки на межкомнатных дверях и фасадах кухни. Спальня родителей выглядит нарядно благодаря растительному мотиву панно в изголовье кровати  и мягкому блеску золотой фурнитуры светильников и мебели. Холодность керамогранита «под мрамор» уравновесили деревянной тумбой и плиткой с аналогичным рисунком. 

Мечтаете о стильном и уютном интерьере? Получите продуманный до мелочей дизайн-проект со скидкой 50% при заказе ремонта в СК «Новая Москва».


Расчет сметы ремонта

Вы будете знать на 95% точный бюджет предстоящих работ ремонта под ключ

Бесплатная консультация дизайнера или прораба инженера

Один разговор по телефону на 10 минут заменяет 4 часа изучения сайтов в интернете. Если вы цените свое время, то рекомендуем воспользоваться нашей консультацией
Нажимая кнопку, вы подтверждаете согласие с условиями политики конфиденциальности сайта
Нужен только телефон. Мы перезвоним, сориентируем по срокам и если все понравится - мастер может выехать на замер уже завтра

Или перезвоните нам
+7 (495) 120-99-10

ВАМ ТАКЖЕ МОГУТ ПОНРАВИТЬСЯ

Яндекс.Метрика