Калькулятор ремонта
с 9:00 до 19:00 ежедневно,
воскресенье выходной
ГлавнаяПортфолиоДизайн квартир фотоДизайн двухкомнатной квартиры по адресу ул. Куусинена, 12

Дизайн двухкомнатной квартиры по адресу ул. Куусинена, 12

Москва ул. Куусинена, 12
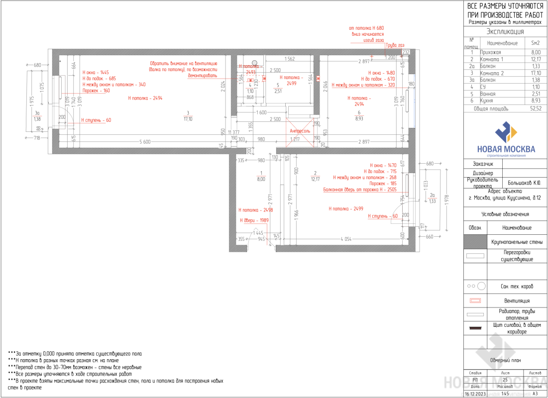
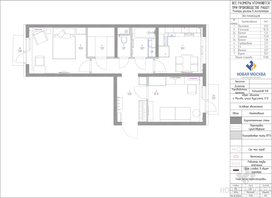
52
2 комнаты

ОПИСАНИЕ ПРОЕКТА

Заказчик, который пришел к нам повторно с новой задачей — самый искренний жест признательности за хорошую работу команды.

Двухкомнатная квартира досталась клиентам в наследство, ее решили отремонтировать и сдавать внаем. За дизайн-проектом и последующим ремонтом хозяева обратились к уже проверенным специалистам СК «Новая Москва».

На площади 52 кв. м было создано максимально функциональное пространство, которое подойдет широкому кругу арендаторов. Вытянутую форму спальни скорректировали, разместив в ней полноценную гардеробную, а сдвиг перегородки в сторону гостиной-кабинета позволил установить шкафы во входной зоне.

Для интерьера выбрано спокойное цветовое решение: нейтральную бело-бежевую основу дополнили приятными оттенками синего, бирюзового и терракотового. Санузлы выполнены в едином стиле, здесь нежные тона пудры и фисташки сбалансированы плиткой графитового цвета и декором с растительным мотивом. 

Мечтаете о стильном и уютном интерьере? Получите продуманный до мелочей дизайн-проект со скидкой 50% при заказе ремонта в СК «Новая Москва».

Расчет сметы ремонта

Вы будете знать на 95% точный бюджет предстоящих работ ремонта под ключ

Бесплатная консультация дизайнера или прораба инженера

Один разговор по телефону на 10 минут заменяет 4 часа изучения сайтов в интернете. Если вы цените свое время, то рекомендуем воспользоваться нашей консультацией
Нажимая кнопку, вы подтверждаете согласие с условиями политики конфиденциальности сайта
Нужен только телефон. Мы перезвоним, сориентируем по срокам и если все понравится - мастер может выехать на замер уже завтра

Или перезвоните нам
+7 (495) 120-99-10

ВАМ ТАКЖЕ МОГУТ ПОНРАВИТЬСЯ

Яндекс.Метрика