Калькулятор ремонта
с 9:00 до 19:00 ежедневно,
воскресенье выходной
ГлавнаяПортфолиоДизайн квартир фотоДизайн двухкомнатной квартиры по адресу ул. Костякова, 10

Дизайн двухкомнатной квартиры по адресу ул. Костякова, 10

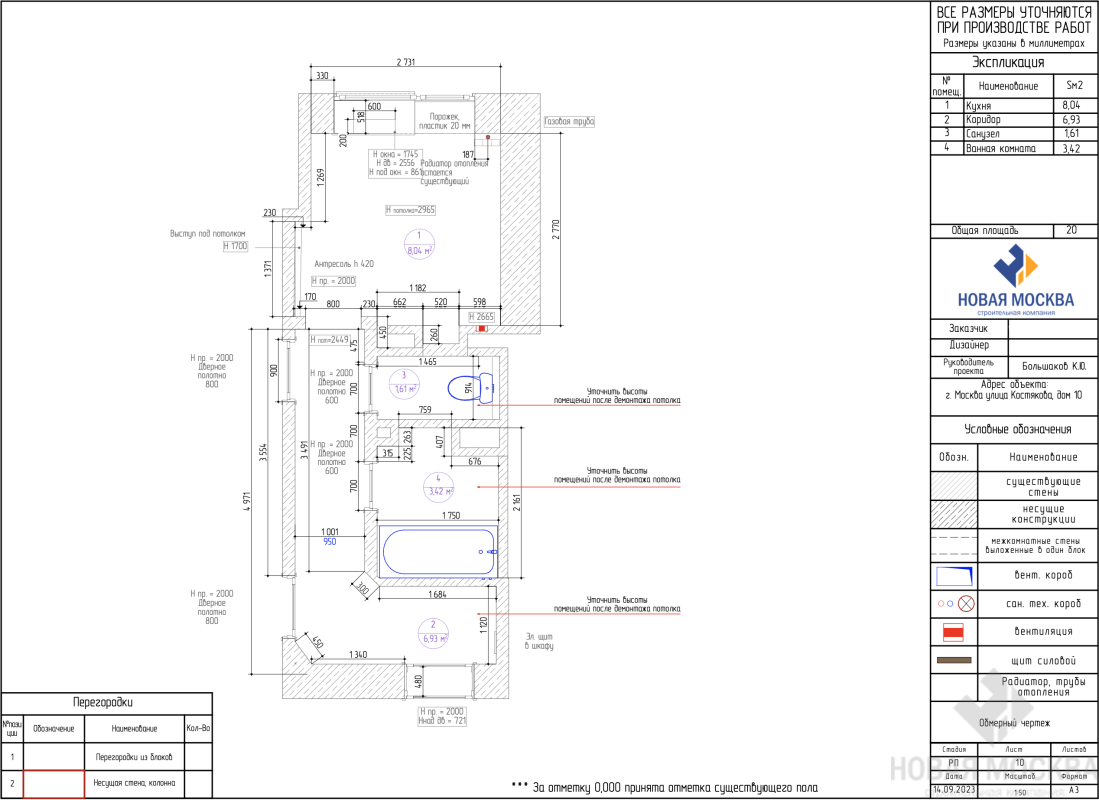
Москва ул. Костякова, 10
0
2 комнаты

ОПИСАНИЕ ПРОЕКТА

Заказчица этого светлого интерьера обратилась в СК «Новая Москва» за частичным дизайн-проектом: в квартире планировалось отремонтировать кухню, два санузла, коридор и прихожую.

Новая кухня получилась просторной и удобной благодаря тщательно продуманному расположению мебели и бытовой техники. Небольшая перепланировка коснулась ниши, которую не использовали из-за неправильной формы. Дизайнер предложил демонтировать часть стены, и в освободившееся пространство удалось вписать закрытые кухонные модули, где разместили встроенный холодильник, полки и ящики для хранения и СВЧ-печь.

Во входной зоне хранение организовали в зеркальном шкафу-купе — такой прием всегда визуально увеличивает площадь компактных помещений. В санузле с ванной предусмотрели несколько систем скрытого хранения, а также оставили комфортный доступ к трубам: в доме старой постройки предстоит замена коммуникаций.

Интерьер выполнен в нейтральной цветовой гамме. Оттенки белого, серого и бежевого создают ощущение чистоты и легкости. Природные фактуры дерева и камня, текстиль теплых тонов отвечают за атмосферу уюта.

Мечтаете о стильном и уютном интерьере? Получите продуманный до мелочей дизайн-проект со скидкой 50% при заказе ремонта в СК «Новая Москва».

Расчет сметы ремонта

Вы будете знать на 95% точный бюджет предстоящих работ ремонта под ключ

Бесплатная консультация дизайнера или прораба инженера

Один разговор по телефону на 10 минут заменяет 4 часа изучения сайтов в интернете. Если вы цените свое время, то рекомендуем воспользоваться нашей консультацией
Нажимая кнопку, вы подтверждаете согласие с условиями политики конфиденциальности сайта
Нужен только телефон. Мы перезвоним, сориентируем по срокам и если все понравится - мастер может выехать на замер уже завтра

Или перезвоните нам
+7 (495) 120-99-10

ВАМ ТАКЖЕ МОГУТ ПОНРАВИТЬСЯ

Яндекс.Метрика