Калькулятор ремонта
с 9:00 до 19:00 ежедневно,
воскресенье выходной
ГлавнаяПортфолиоДизайн квартир фотоДизайн двухкомнатной квартиры по адресу ул. Академика Глушко, дом 6

Дизайн двухкомнатной квартиры по адресу ул. Академика Глушко, дом 6

Москва ул. Академика Глушко, дом 6
65
2 комнаты

ОПИСАНИЕ ПРОЕКТА

Владельцы квартиры — семья из трех человек — пришли в нашу компанию с запросом на лаконичный интерьер с элементами экостиля.

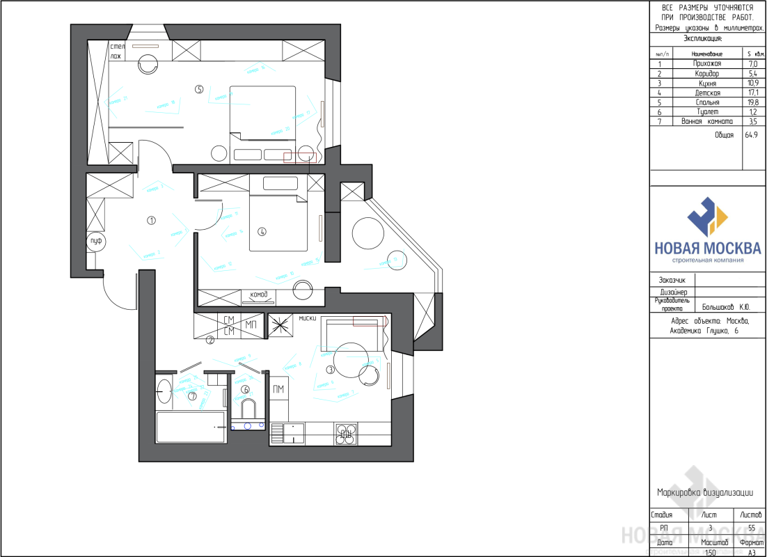
В квартире сохранили исходную планировку. На площади 65 кв. м разместились спальня родителей, детская комната, которую объединили с утепленной лоджией, автономная кухня, прихожая и раздельный санузел.

Для всех помещений выбрана единая цветовая гамма: в интерьере солирует белый цвет, а оттенки светлого дерева и зеленые акценты поддерживают общую идею натуральности. Деликатные приметы экостиля — деревянные светильники, бра-птицы, постеры с растительными мотивами и комнатная зелень — оживляют минималистичное пространство.

В этом проекте тщательно продуманы многочисленные системы хранения. Небольшая площадь ванной не позволила установить там стиральную машину, ей нашли место во встроенном шкафу в коридоре. Гладкие закрытые фасады мебели сливаются с цветом стен и не выглядят массивными. Хозяйка квартиры преподает онлайн, поэтому в спальне родителей предусмотрены рабочее место и мобильная рулонная штора на потолке, которая служит фоном при проведении занятий.

Мечтаете о стильном и уютном интерьере? Получите продуманный до мелочей дизайн-проект со скидкой 50% при заказе ремонта в СК «Новая Москва».


Расчет сметы ремонта

Вы будете знать на 95% точный бюджет предстоящих работ ремонта под ключ

Бесплатная консультация дизайнера или прораба инженера

Один разговор по телефону на 10 минут заменяет 4 часа изучения сайтов в интернете. Если вы цените свое время, то рекомендуем воспользоваться нашей консультацией
Нажимая кнопку, вы подтверждаете согласие с условиями политики конфиденциальности сайта
Нужен только телефон. Мы перезвоним, сориентируем по срокам и если все понравится - мастер может выехать на замер уже завтра

Или перезвоните нам
+7 (495) 120-99-10

ВАМ ТАКЖЕ МОГУТ ПОНРАВИТЬСЯ

Яндекс.Метрика