Калькулятор ремонта
с 9:00 до 19:00 ежедневно,
воскресенье выходной
ГлавнаяПортфолиоДизайн квартир фотоДизайн двухкомнатной квартиры по адресу: проспект Куприна, дом 3, корпус А

Дизайн двухкомнатной квартиры по адресу: проспект Куприна, дом 3, корпус А

проспект Куприна, дом 3, корпус А
59
2 комнаты

ОПИСАНИЕ ПРОЕКТА

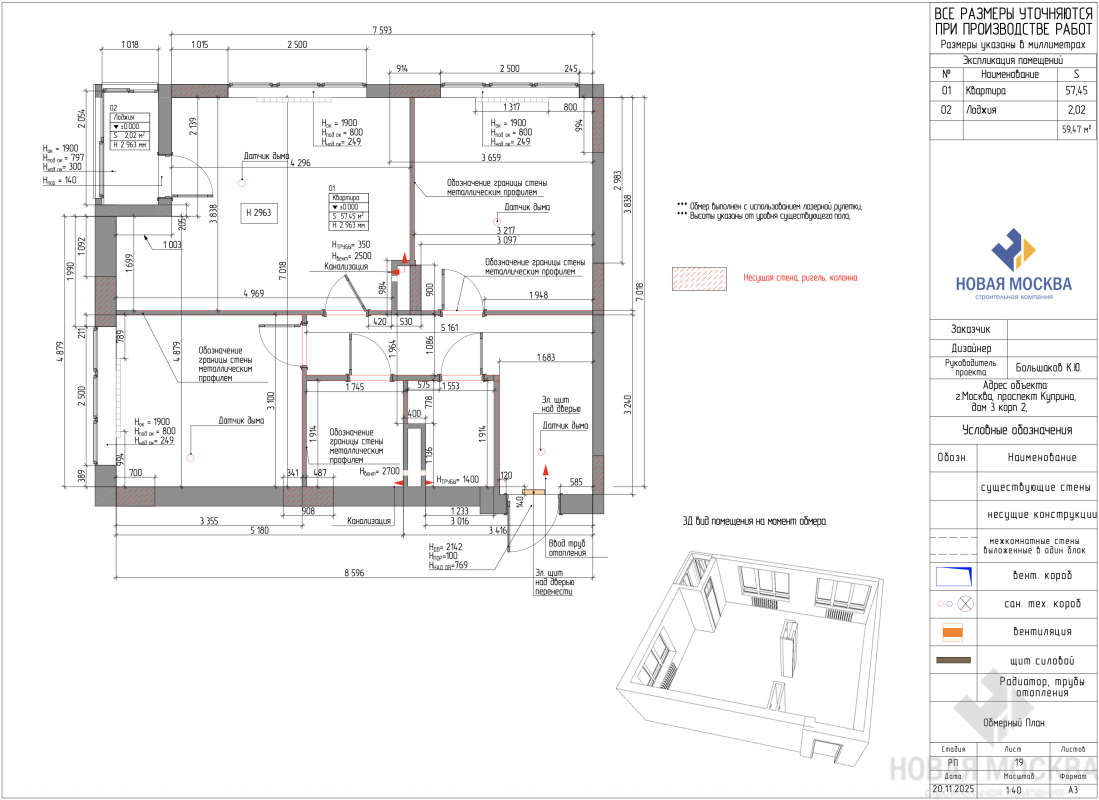
Квартира в ЖК «Скандинавия» приобретена для сдачи внаем. Заказчик и дизайнер СК «Новая Москва» определили примерный портрет арендатора, чтобы разработать оптимальную планировку жилья.

На площади 59 кв. м разместились прихожая, два санузла, кухня-гостиная, спальня и детская. В каждом помещении удалось выделить функциональные зоны, продумать меблировку и оборудование с учетом планового бюджета проекта. Не обделены вниманием вопросы хранения: в прихожей, гостиной, спальне и детской предусмотрены шкафы и тумбы, на кухне запланирована установка вместительного гарнитура со всей необходимой техникой. В малом санузле установлен шкаф для хранения бытовой химии, на лоджии — стеллаж для дополнительного хранения.

Спокойная гамма — логичный выбор для инвестиционного жилья. Комбинацию бежевого, серого и белого дополняют деликатные черные акценты. Деревянные поверхности и текстильная обивка мебели делают пространство теплым и уютным. Рифленые фасады тумб и шкафов задают визуальный ритм и оживляют нейтральный характер интерьера.

Мечтаете о стильном и уютном интерьере? Получите продуманный до мелочей дизайн-проект со скидкой 50% при заказе ремонта в СК «Новая Москва».

Расчет сметы ремонта

Вы будете знать на 95% точный бюджет предстоящих работ ремонта под ключ

Бесплатная консультация дизайнера или прораба инженера

Один разговор по телефону на 10 минут заменяет 4 часа изучения сайтов в интернете. Если вы цените свое время, то рекомендуем воспользоваться нашей консультацией
Нажимая кнопку, вы подтверждаете согласие с условиями политики конфиденциальности сайта
Нужен только телефон. Мы перезвоним, сориентируем по срокам и если все понравится - мастер может выехать на замер уже завтра

Или перезвоните нам
+7 (495) 120-99-10

ВАМ ТАКЖЕ МОГУТ ПОНРАВИТЬСЯ

Яндекс.Метрика