Калькулятор ремонта
с 9:00 до 19:00 ежедневно,
воскресенье выходной
ГлавнаяПортфолиоДизайн квартир фотоДизайн двухкомнатной квартиры по адресу проспект Куприна, дом 3, корпус 2

Дизайн двухкомнатной квартиры по адресу проспект Куприна, дом 3, корпус 2

пр-кт Куприна, дом 3, корпус 2
60
2 комнаты

ОПИСАНИЕ ПРОЕКТА

Жилье принадлежит семейной паре с двумя детьми. Дизайнеру СК «Новая Москва» удалось создать приветливый и функциональный интерьер, где каждому найдется место для работы, учебы и отдыха.

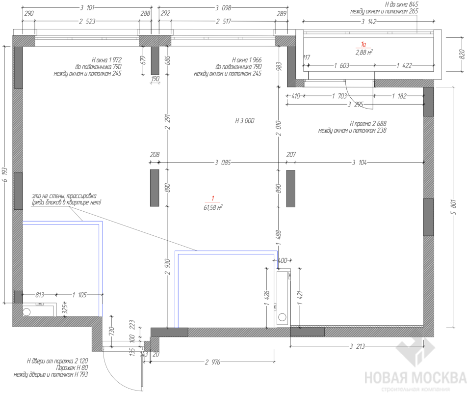
Квартира была приобретена в свободной планировке. На площади 60,5 кв. м дизайнер разместил прихожую, два санузла, кухню-гостиную и две детских. Кухня-гостиная служит также родительской спальней: зону готовки и приема пищи отделили раздвижной перегородкой, раскладной диван заменяет кровать. Лоджию по проекту планируется утеплить и использовать как мини-кабинет.

Интерьер выполнен в сдержанных природных оттенках. Мягкий бежевый цвет стен служит отличным фоном для пастельных акцентов: фисташкового в кухне-гостиной, нежно-розового и дымчато-голубого в комнатах детей. Натуральную палитру гармонично дополняют полы и мебель с фактурой светлого дерева. Деликатные рамки молдингов и рифленые фасады мебели избавляют пространство от монотонности и задают визуальный ритм.

Встроенные системы хранения разместили в каждом помещении квартиры. Вместительные шкафы не выглядят громоздкими благодаря расположению в нишах и лаконичному оформлению. Система освещения также не перегружает обстановку и визуально зонирует пространство.

Мечтаете о стильном и уютном интерьере? Получите продуманный до мелочей дизайн-проект со скидкой 50% при заказе ремонта в СК «Новая Москва».


Расчет сметы ремонта

Вы будете знать на 95% точный бюджет предстоящих работ ремонта под ключ

Бесплатная консультация дизайнера или прораба инженера

Один разговор по телефону на 10 минут заменяет 4 часа изучения сайтов в интернете. Если вы цените свое время, то рекомендуем воспользоваться нашей консультацией
Нажимая кнопку, вы подтверждаете согласие с условиями политики конфиденциальности сайта
Нужен только телефон. Мы перезвоним, сориентируем по срокам и если все понравится - мастер может выехать на замер уже завтра

Или перезвоните нам
+7 (495) 120-99-10

ВАМ ТАКЖЕ МОГУТ ПОНРАВИТЬСЯ

Яндекс.Метрика