Калькулятор ремонта
с 9:00 до 19:00 ежедневно,
воскресенье выходной
ГлавнаяПортфолиоДизайн квартир фотоЧастичный дизайн квартиры по адресу: Москва, поселение Сосенское, поселок Коммунарка, микрорайон Эдальго, дом 1

Частичный дизайн квартиры по адресу: Москва, поселение Сосенское, поселок Коммунарка, микрорайон Эдальго, дом 1

Москва, поселение Сосенское, поселок Коммунарка, микрорайон Эдальго, дом 1
27
1 комната

ОПИСАНИЕ ПРОЕКТА

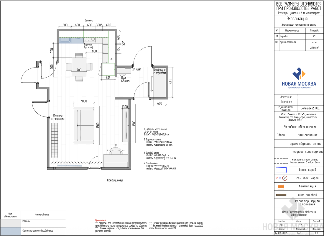
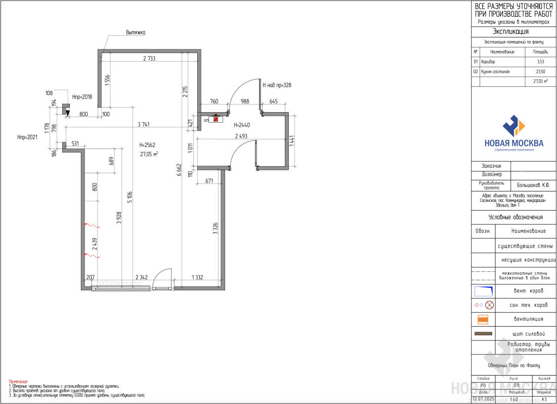
Молодая пара обратилась в СК «Новая Москва» с запросом на дизайн-проект части квартиры: входной зоны и кухни-гостиной. Заказчики хотели получить современное пространство с продуманными функциональными зонами. Интересным нюансом проекта стала необходимость найти место для птичьих клеток — у заказчиков живут два попугая.

Для интерьера выбрана нейтральная цветовая основа: на фоне светлых стен и пола оттенка горького шоколада яркие акценты выглядят эффектно и сочно. В квартире невысокие потолки, поэтому систему освещения сделали подчеркнуто минималистичной — лаконичные белые светильники не привлекают внимания к пропорциям помещения.

Дизайнер уделил особое внимание зонированию:

-в компактной прихожей нашлось место для встроенного шкафа, пуфа и подвесной тумбы для хранения мелочей,

-кухонный гарнитур гармонично вписали в нишу, а столовая группа визуально отделяет кухню от гостиной,

-зону отдыха обозначили диваном, у окна разместили рабочий стол, а у свободной стены клетки для питомцев.

Мечтаете о стильном и уютном интерьере? Получите продуманный до мелочей дизайн-проект со скидкой 50% при заказе ремонта в СК «Новая Москва».


Расчет сметы ремонта

Вы будете знать на 95% точный бюджет предстоящих работ ремонта под ключ

Бесплатная консультация дизайнера или прораба инженера

Один разговор по телефону на 10 минут заменяет 4 часа изучения сайтов в интернете. Если вы цените свое время, то рекомендуем воспользоваться нашей консультацией
Нажимая кнопку, вы подтверждаете согласие с условиями политики конфиденциальности сайта
Нужен только телефон. Мы перезвоним, сориентируем по срокам и если все понравится - мастер может выехать на замер уже завтра

Или перезвоните нам
+7 (495) 120-99-10

ВАМ ТАКЖЕ МОГУТ ПОНРАВИТЬСЯ

Яндекс.Метрика